Details

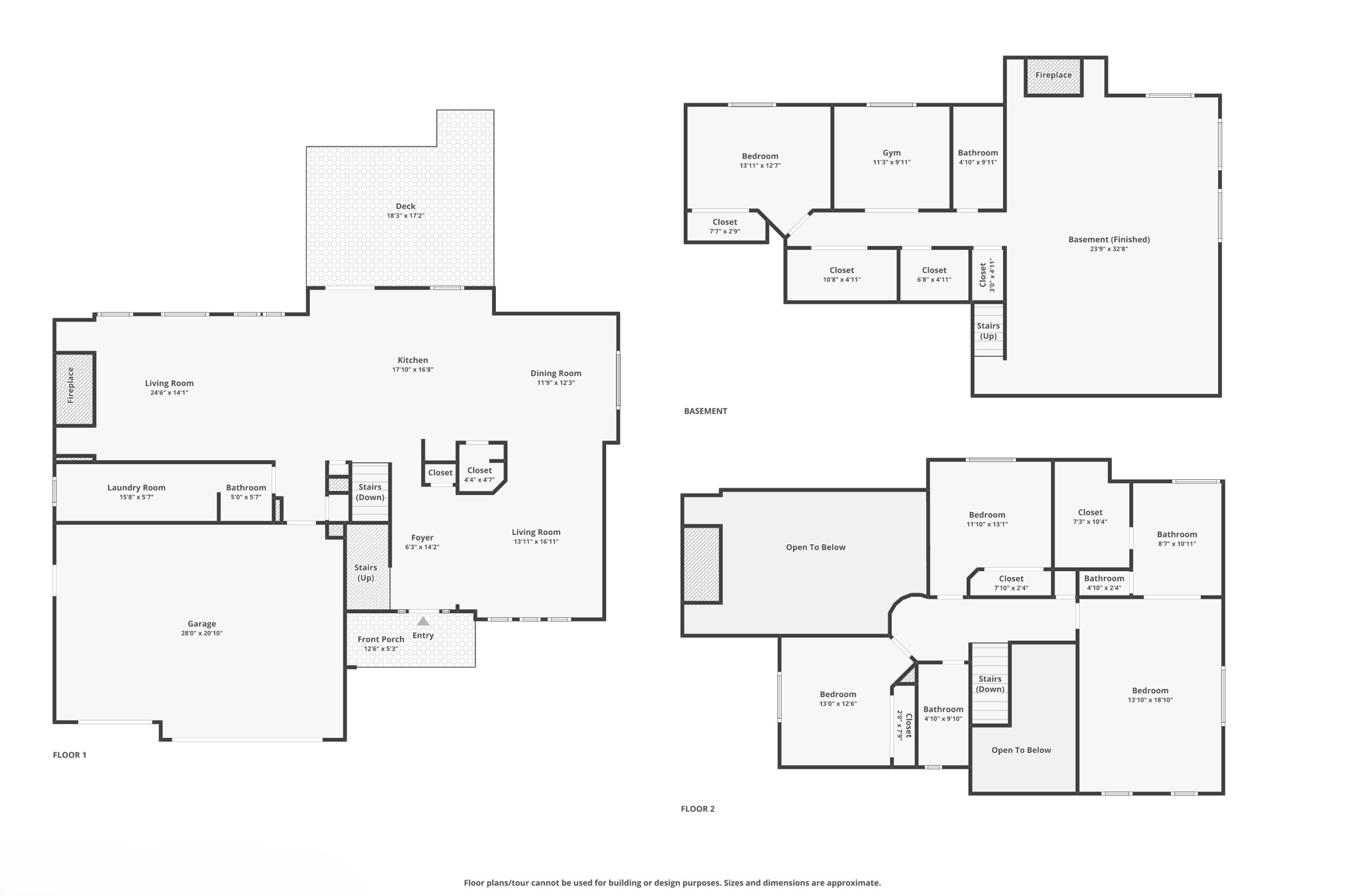
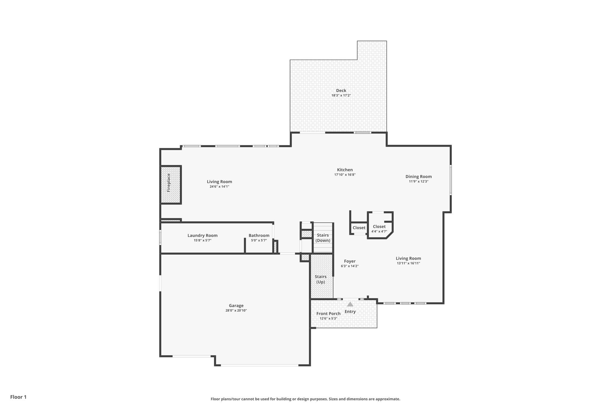
Stunning Briargate two-story home set on an expansive **over 1/4-acre lot** with a **3-car garage** and **rare RV parking**, offering a combination of space, upgrades, and location that is hard to find. Ideally situated near award-winning D-20 schools, parks, the YMCA, shopping, and the Powers corridor, this home delivers both everyday convenience and a peaceful residential setting. Built in 2000, the home features an open and popular layout that is **light, bright, and filled with natural light**, thanks to an abundance of windows that truly bring the Colorado outdoors inside.

The heart of the home is the **must-see, fully renovated kitchen**, showcasing custom cabinetry, a large island, statement hood, and thoughtful design details that flow seamlessly into the dining and living areas with beautiful Acacia wood flooring. A dramatic two-story great room features a stunning wall of windows overlooking the manicured backyard, creating an inviting space for everyday living and entertaining. An updated bannister adds a modern touch and enhances the open feel of the main level.

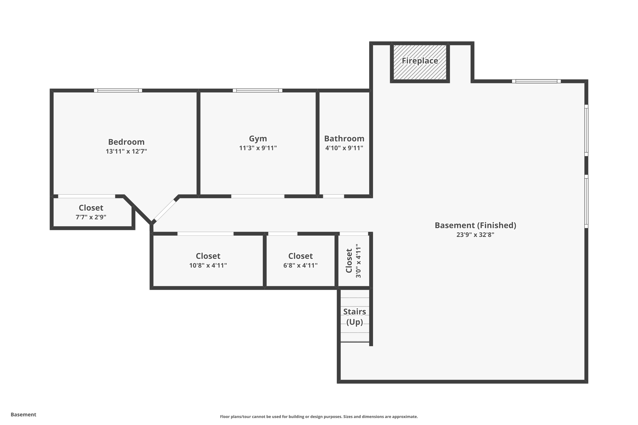
The **garden-level basement** offers excellent flexibility with a spacious family room complete with gas fireplace and built-ins, along with a dedicated office, fourth bedroom, bathroom, and generous storage space. Outdoor living is just as impressive with an updated Trex deck, gazebo, storage shed, and an incredible hot tub with built-in gazebo—perfect for year-round enjoyment. The backyard is beautifully maintained, and landscaping materials are included for added convenience.

Upstairs, the primary suite is a true retreat with vaulted ceilings, mountain views, abundant windows, and a luxurious updated five-piece bath. Two additional bedrooms and an updated bathroom with step-in shower complete the upper level. The property also features **rare RV parking** with a concrete pad and double gate, plus extra parking options. Additional highlights include exterior trim lighting, over-garage floodlight and camera, mounted garage shelving, a mini-split heat/air system, hoist in the garage, and thoughtful inclusions such as mounted whiteboards in the kitchen and office.

With its exceptional lot, extensive upgrades, and long list of included features, this remarkable Briargate home is truly a must-see—schedule your showing before it’s gone.

  • $675,000
  • 5 Bedrooms
  • 4 Bathrooms
  • 3,678 Sq/ft
  • Lot 0.26 Acres
  • 3 Parking Spots
  • Built in 2000
  • MLS: 1351671

Images

Videos

Floor Plans

3D Tour

Contact

Feel free to contact us for more details!