Details

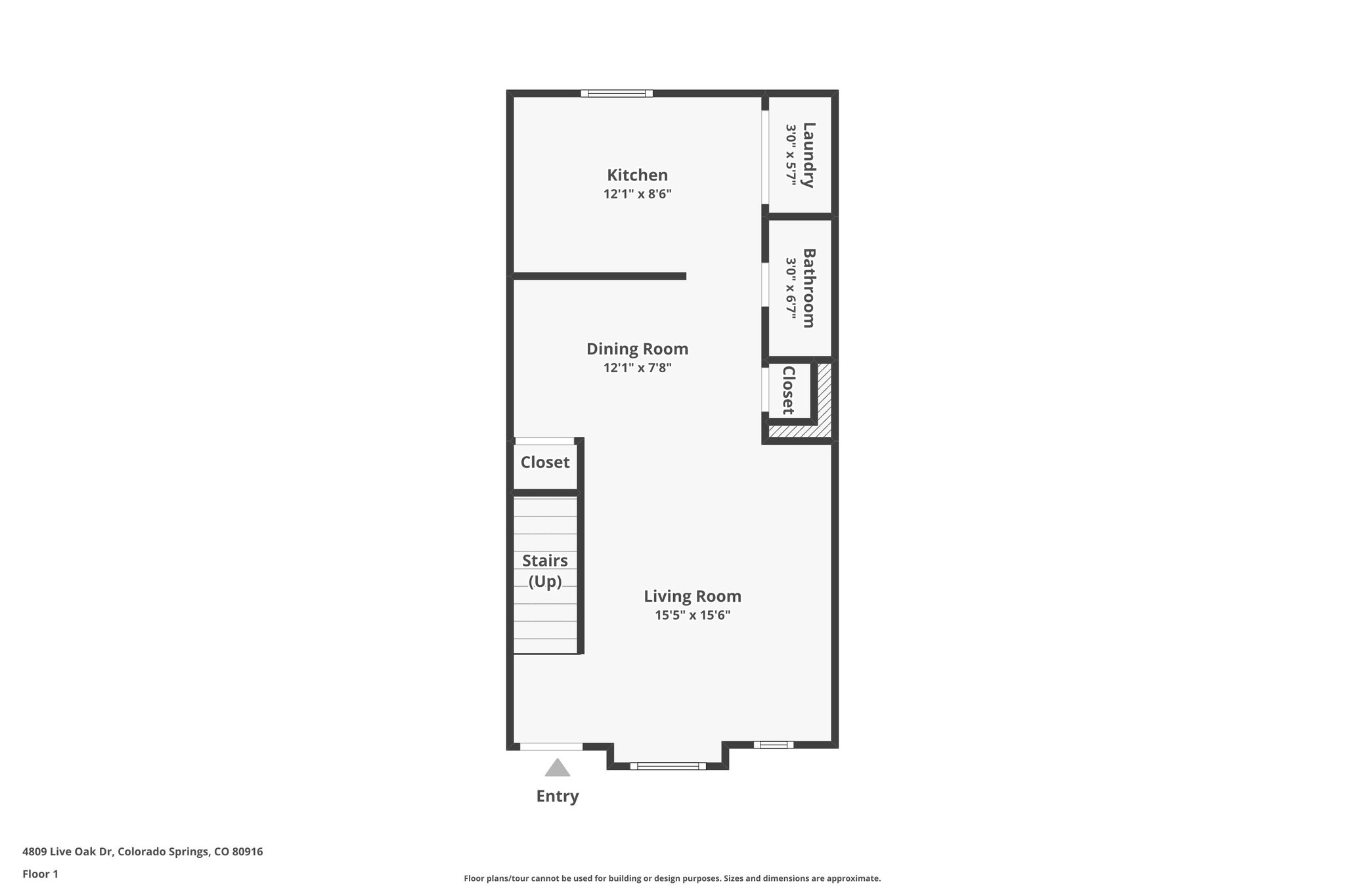
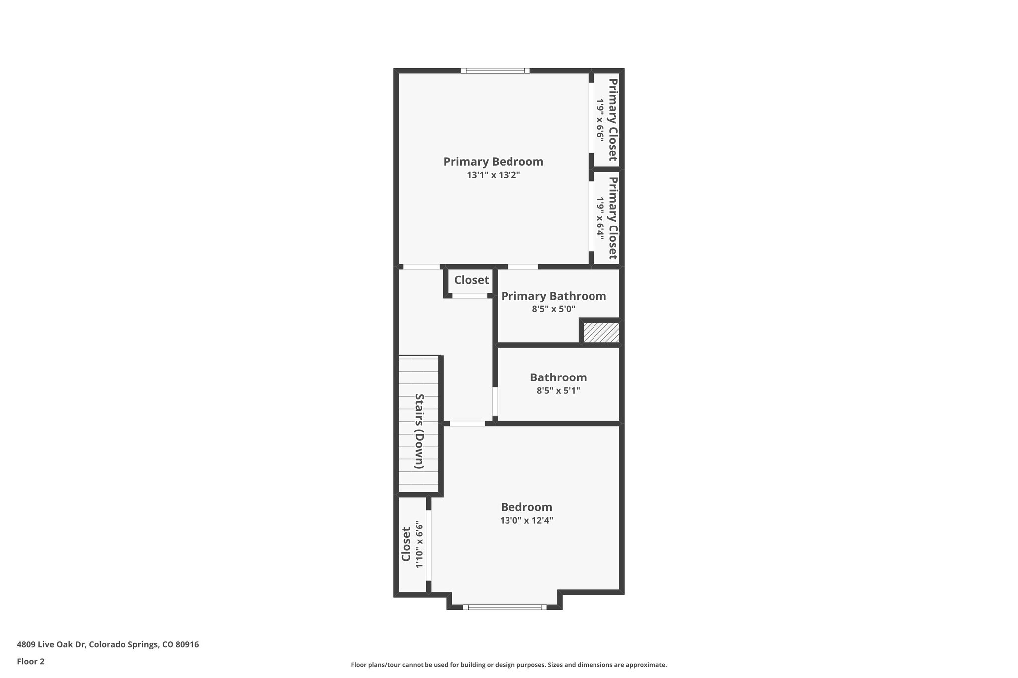
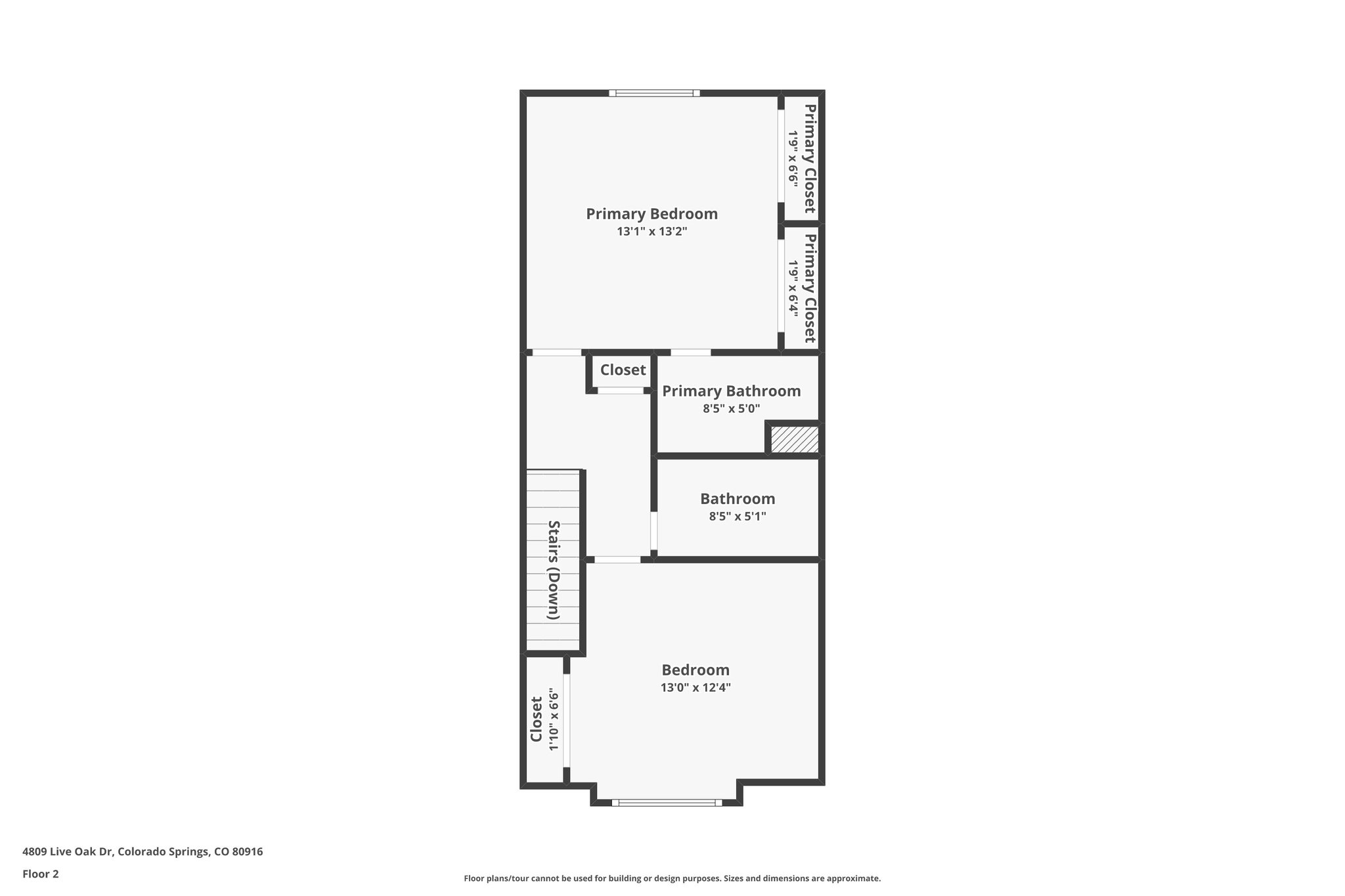
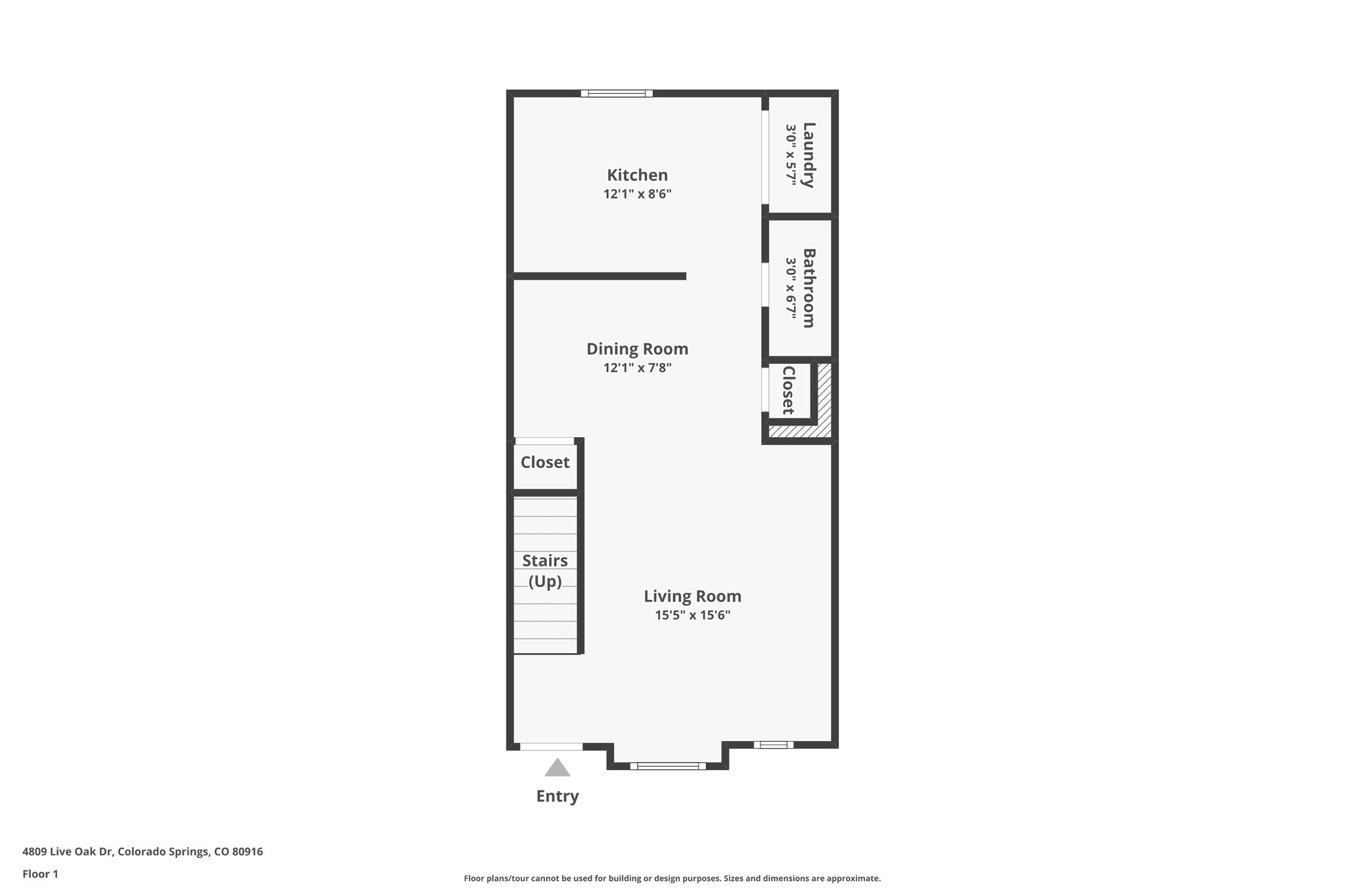
This newly updated two-story townhome, built in 1997, offers over 1,100 square feet of comfortable living space with 2 bedrooms and 2.5 bathrooms, making it an ideal option for owner-occupants or a roommate-style setup. Upon entry, you’re welcomed by a spacious, light-filled living room, complemented by fresh interior paint and brand-new carpeting throughout the entire home. The open floor plan flows seamlessly into the kitchen and dining area, where all-new stainless-steel appliances have just been installed, including a space-saver microwave and a brand-new washer and dryer conveniently located in the unit. Both bedrooms offer double closets and are generously sized, with one featuring an en-suite bathroom and the second offering easy access to a full bath nearby, while a convenient half bath serves the main level. Step outside to a private, fenced back patio with direct access to green space, and enjoy proximity to a nearby neighborhood park. Additional highlights include two assigned parking spaces located directly in front of the unit and a clean, all new lighting and new window blinds, bonus storage space in the crawl, and move-in-ready condition throughout. The HOA, at $230 per month, covers trash, snow removal, exterior maintenance, common utilities, insurance, and enforcement. Nestled in a residential setting with quick access to Fort Carson, Peterson Space Force Base, Amazon, and the Colorado Springs Airport, this townhome also offers easy access to downtown and the Powers corridor for shopping, dining, and everyday convenience. See it soon and make it yours for the new year!

  • $229,900
  • 2 Bedrooms
  • 3 Bathrooms
  • 1,102 Sq/ft
  • Lot 0.01 Acres
  • 2 Parking Spots
  • Built in 1997
  • MLS: 5892149

Images

Floor Plans

3D Tour

Contact

Feel free to contact us for more details!