Details

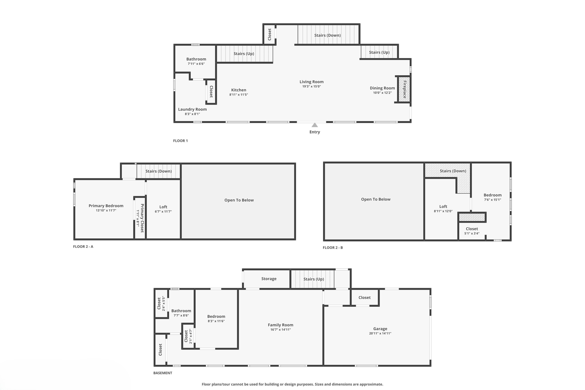
This charming residence captures the nostalgic essence of a Colorado cabin, making it an excellent choice for both a primary residence or a weekend escape. Nestled on over 2 acres, the property is fully fenced and features a solar-powered gate, ensuring easy access. Surrounded by picturesque aspen and pine trees on the entire property, it provides a tranquil setting with ample privacy, perfect for relaxing by the wood-burning fireplace on the newly painted wrap-around deck or hosting a social gathering around the fire pit at the property's center, a picturesque spot. Inside, the home showcases a stunning wood-vaulted ceiling that enhances the spacious and welcoming atmosphere. The updated kitchen features beautiful hickory cabinets, a gas range, stainless steel appliances, and solid stone countertops, seamlessly flowing into the family room and dining area, which is highlighted by another inviting wood-burning fireplace. The upper level includes brand new carpeting and two inviting bedrooms that provide cozy retreats, complemented by two lofts that overlook the main living space. The basement offers a spacious recreation room and an additional bedroom with a walkout. The home is further equipped with several large storage closets and a heated garage, which includes a workbench and additional storage options. At the rear of the home, a stamped concrete patio awaits, featuring a hot tub that offers breathtaking views of the surrounding landscape. Among other notable features are a new Class 4 roof, solid wood doors throughout, and wood-encased windows. This property truly offers the finest in Colorado living.

  • $595,000
  • 3 Bedrooms
  • 2 Bathrooms
  • 2,174 Sq/ft
  • Lot 2.08 Acres
  • 1 Parking Spots
  • Built in 1989
  • MLS: 2914337

Images

Floor Plans

3D Tour